Tagespflege im Ursulinenhof
Leitung: Sabine Kurz
Kontakt: 07661/3849463 oder tagespflege@ursulinenhof.de
Die Tagespflege für 16 Personen wurde im Januar 2020 im Ursulinenhof eröffnet. Sie älteren Menschen Betreuung, Unterstützung und soziale Kontakte und entlastet pflegende Angehörige. Die Tagespflege ist eng in die Dorfgemeinschaft eingebettet – Angehörige, Mitarbeitende und Tagesgäste kennen sich zum Teil schon über Jahre. Wichtig ist uns eine vertrauensvolle Atmosphäre, die Grundlage unserer Arbeit in der Tagespflege ist. Gemeinsam sorgen wir dafür, dass alle gut versorgt sind und sich wohl fühlen.
Die Oberrieder Wirte
Unsere Oberrieder Wirtsleute versorgen die Tagesgäste täglich mit einem leckeren frisch gekochten Mittagssen. Was für ein toller Beitrag für die Dorfgemeinschaft.Unsere Tagesgäste lieben das Essen aus den ihnen bekannten Gaststätten sehr.
Die Fahrer der Tagespflege
Fünfzehn engagierte Fahrerinnen und Fahrer aus Oberried und dem Dreisamtal holen unsere Gäste täglich gegen eine Aufwandsentschädigung mit unserem 9-Sitzer-Bus und unserem rollstuhlgerechten Fahrzeug von zu Hause ab und bringen sie abends wieder sicher nach Hause. Hier entsteht schnell Vertrauen und Verbundenheit, manche kennen sich schon seit vielen Jahren.
Und sie sind es, die täglich bei den Wirten das leckere Essen für die Tagespflege abholen und in die Tagespflege bringen.
Und sie sind es, die täglich bei den Wirten das leckere Essen für die Tagespflege abholen und in die Tagespflege bringen.
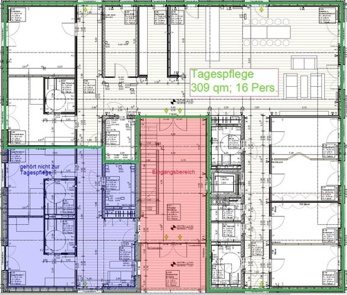
Räumlichkeiten der Tagespflege
Erdgeschoss des nördlichen Hauses mit der Tagespflege (grüne Umrandung im Grundriss). Daneben befinden sich 2 barrierefreie Ferien-Apartments (blaue Fläche im Grundriss), die nicht zur Tagespflege gehören.- Kurzinfo Tagespflege Ursulinenhof
(PDF Datei - 616 KB) - Konzeption zur Tagespflege im Ursulinenhof
(PDF Datei - 597 KB) - Tagesstruktur Tagespflege
(PDF Datei - 533 KB) - Kosten und Leistungen Tagespflege
(PDF Datei - 84 KB) - Interessensbekundung Tagespflege
(PDF Datei - 514 KB) - Pflegevertrag Tagespflege
(PDF Datei - 1,10 MB) - Gutschein Tagespflege
(PDF Datei - 101 KB)

